Digital Nomad Hub

Fred’s Nomad Hub Dunedin, New Zealand as a unique, marketable name and design to leverage Fred Howell’s legacy, the 1903 piano workshop’s heritage, and Dunedin’s cultural appeal.

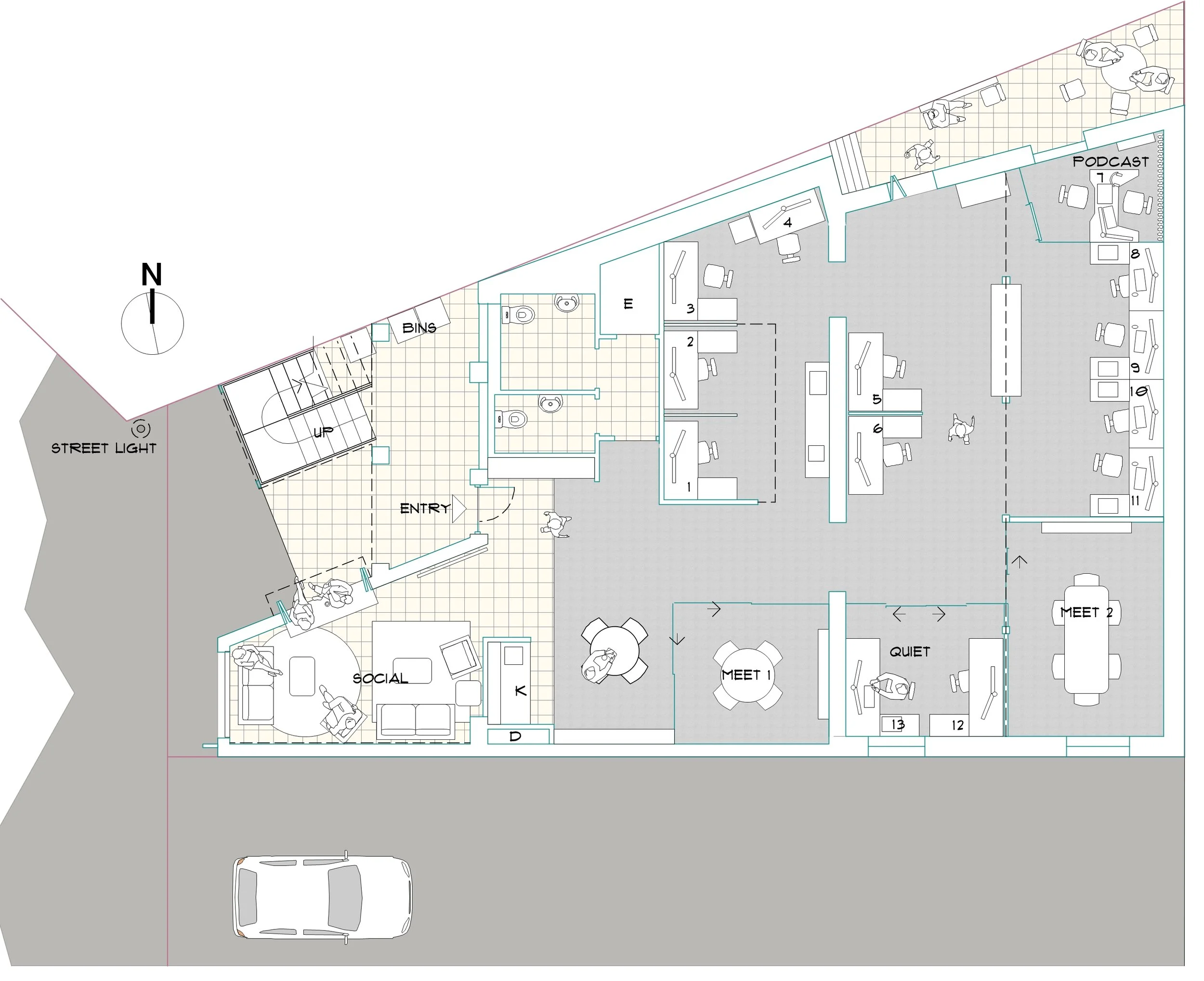
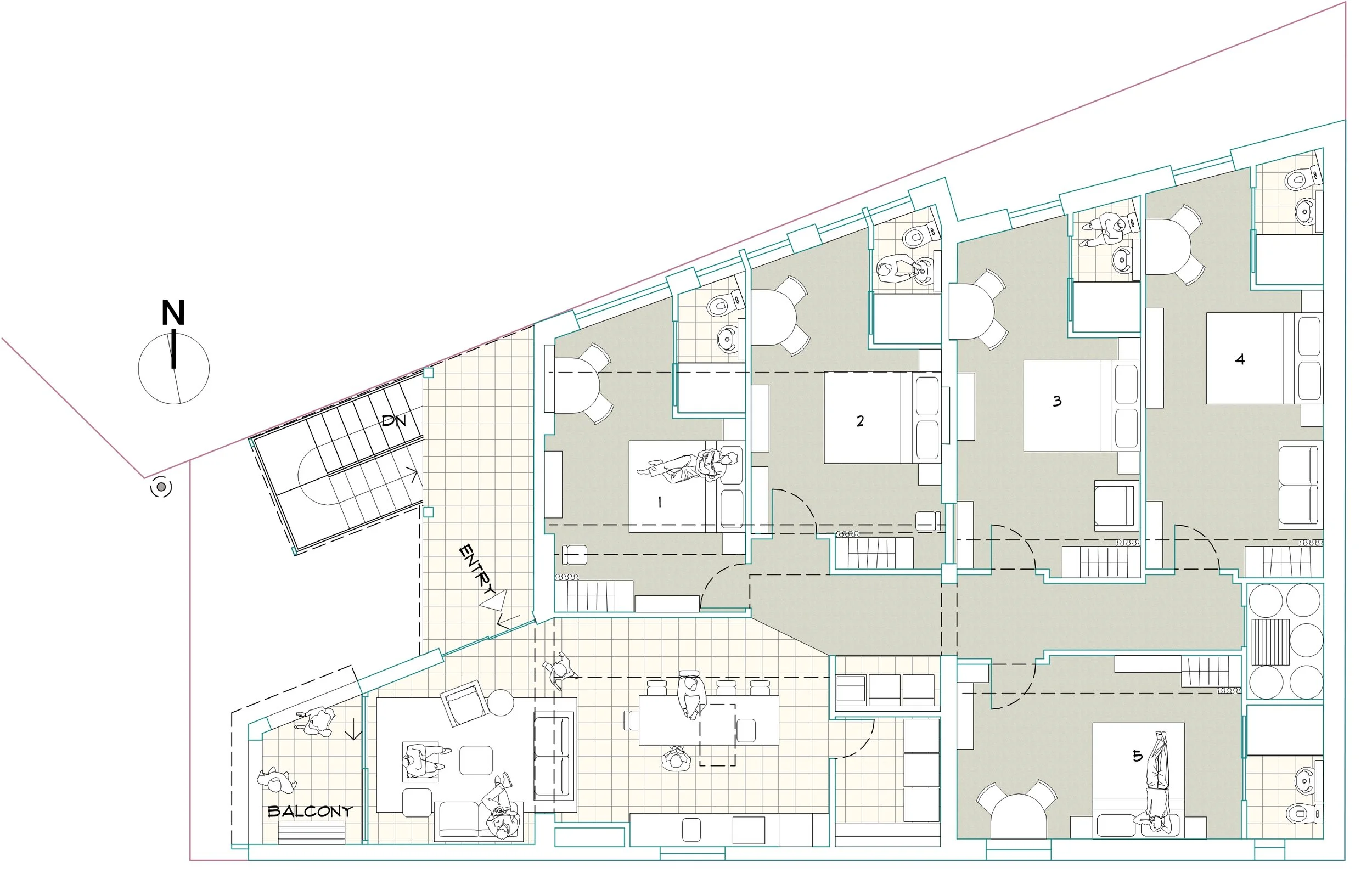
Design for co-workers on the lower level with accommodation for the nomadic digital workers on the upper level.

Previous
Previous

Open Book Visitor Centre

Next
Next

Heatwave